SGM PRM-100 met. mehan.-2 vrata
Opis proizvoda
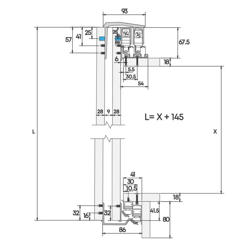
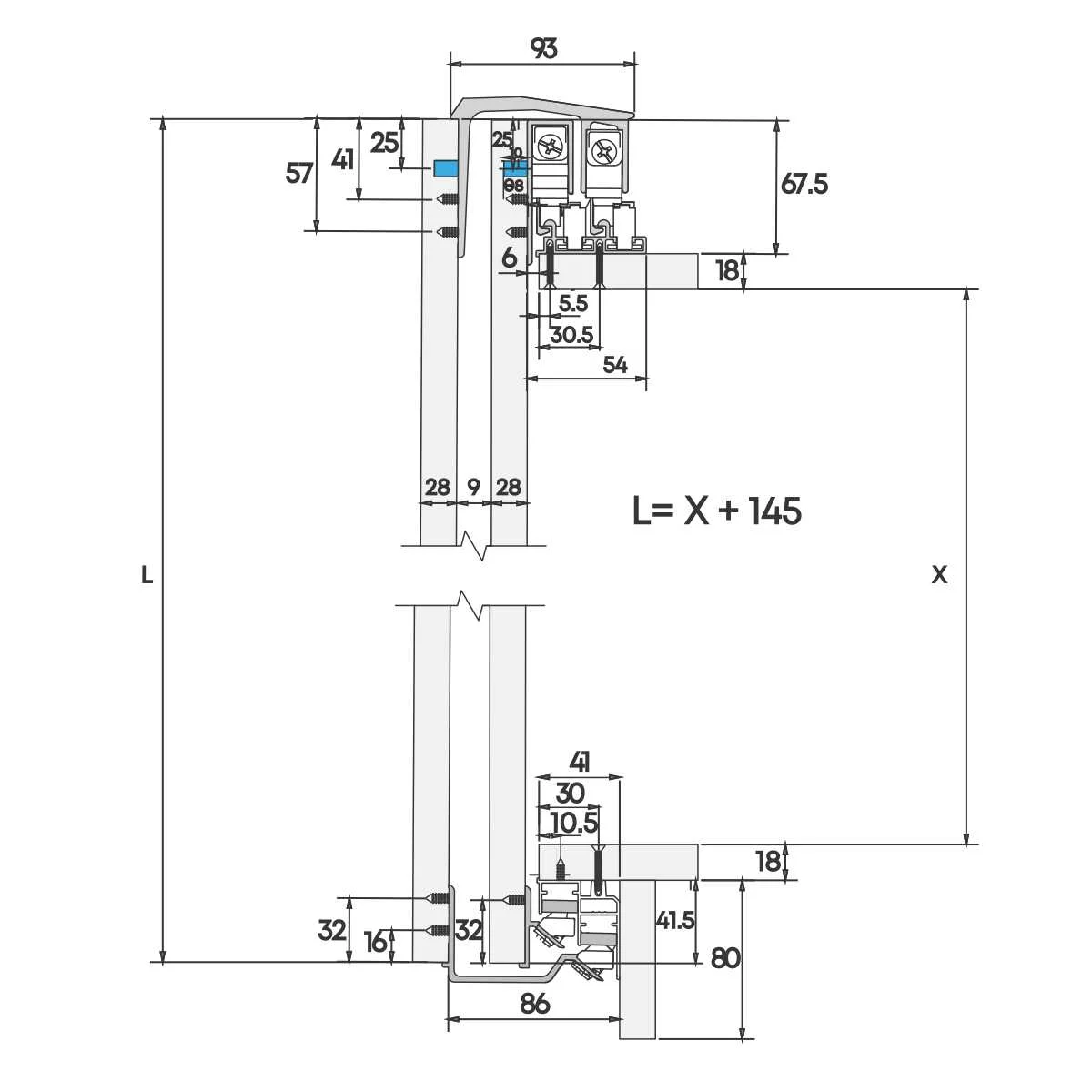
SGM Pyramid mehanizam za klizna plakarska vrata Pyramid sistem je namenjen za izradu drvenih plakarskih vrata sa osloncem na gornju šinu (šapa sistem). Raspon debljina ispune koju podržava SGM Pyramid sistem je od 16 do 48mm, dok je maksimalno opterećenje do 80kg max. (po vratima). Usporivači se ubacuju u gornju šinu pre montaže gornje šine na plafon korpusa, a nakon postavljanja vrata, mogu se pozicionirati imbus ključem u određeni položaj. Donji mehanizmi se montiraju jednostavnim guranjem vrata ka korpusu (click sistem). U prodajnom setu se nalaze mehanizmi za spoljna i unutrašnja vrata, kao i četiri usporivača koji omogućavaju meko zatvaranje svih vrata u oba smera kretanja. Preporučujemo i zatezače/španere za klizna vrata koji mogu da spreče eventualnu devijaciju vrata nakon određenog vremenskog perioda. U segmentu "Brošure" možete pronaći PDF dokument sa svim detaljima koji su vezani za Pyramid sistem.
